Používame cookies

Súbory cookie a ďalšie technológie sledovania používame na zlepšenie vášho zážitku z prehliadania našich webových stránok, na to, aby sme vám zobrazovali prispôsobený obsah a cielené reklamy, na analýzu návštevnosti našich webových stránok a na pochopenie toho, odkiaľ naši návštevníci prichádzajú. Viac info

 

NA PREDAJ – polyfunkčný objekt v úplnom centre mesta Senec - obchodný priestor na prízemí a kancelárie na poschodí - pri pešej zóne

Ulica: Mäsiarska
Mestská časť: Senec-mesto
Obec: Senec
Okres: Senec
Kraj: Bratislavský kraj
Druh: Domy
Typ: Predaj
Typ domu: Rodinný dom
515 000 €

Popis nehnuteľnosti

RK Quality SC je tu pre Vás vyše 20 rokov. Garantujeme vrátenie rezervačného poplatku keď Vám nevybavíme hypotéku, pričom neplatíte poplatky za znalecký posudok ani za kolky na katastri.

POLYFUNKČNÝ OBEKT v úplnom centre mesta pri pešej zóne - ul. Mäsiarska.

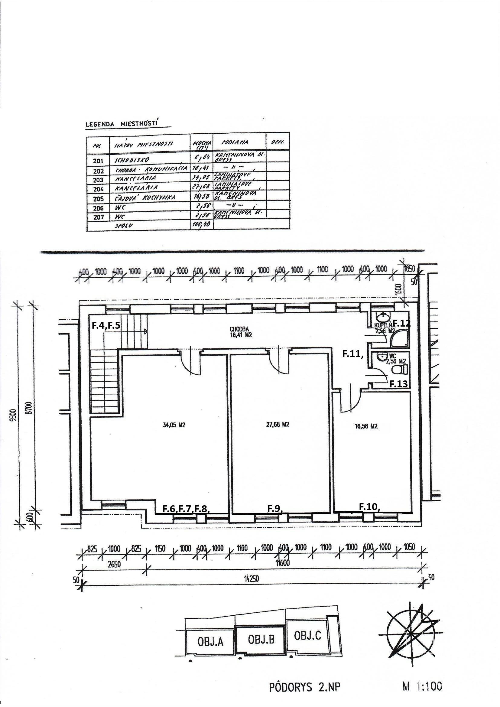
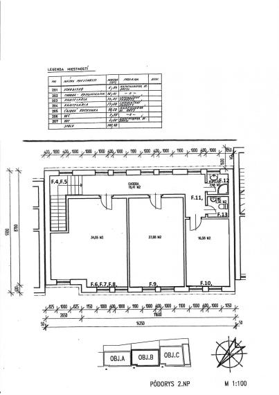
Objekt pozostáva z 3 obchodných priestorov. Z ulice na prízemí je vstup s výkladmi, každý s úžitkovou plochou 30 m2 a na poschodí sú 3 kancelárske priestory so sociálnym zariadením s úžitkovou plochou 100 m2. Zo zadnej strany objektu sa nachádza uzavretý dvor s plochou cca 45 m2. Objekt bol skolaudovaný v roku 1999, nachádza sa v zachovalom technickom stave.

Technické riešenie:

Objekt je postavený z pálenej tehly so šírkou 35 cm, zo severnej strany zateplený polystyrénom 5 cm, sedlová strecha Bramac s pochôdznou drevenou povalou. Okná sú plastové 2 sklo so žalúziami, kúrenie je riešené plynovým kotlom Protherm s radiátormi. Priestor má keramickú dlažbu. Klíma v jednom priestore, alarm.

Všetky inžinierske siete a optický kábel.

Orientácia severozápad.

Vhodné pre podnikateľa alebo ako investičná nehnuteľnosť s pravidelným pasívnym príjmom z prenájmu od aktuálnych nájomcov.

Parkovanie verejné.

Najlepšia infraštuktúra v úplnom centre mesta vhodná pre obchod a služby.

Cena : 515 000,- EUR

ZABEZPEČÍME VÁM VÝHODNÚ HYPOTÉKU A DOFINANCOVANIE TEJTO NEHNUTEĽNOSTI - ZDARMA (pretože nášho hypoporadcu platia banky) A PROMPTNE - vybavte všetko na jednom mieste, lacnejšie ako kdekoľvek inde. U NÁS NEPLATÍTE NÁKLADY ZA ZNALECKÝ POSUDOK A OSTATNÉ POPLATKY.

Kontakt: Ing. Jozef Kaša , RK Quality SC, mobil: 0903 431 141, pevná linka: 02 / 381 381 00, e-mail: jozef.kasa@qualitysc.sk

Kompletnú ponuku našej RK Quality SC nájdete na stránke: www.NehnutelnostiSenec.sk

Navštíviť nás môžete osobne na adrese:
RK Quality SC, Lichnerova 25, 903 01 Senec
na pešej zóne - v obchodnom dome KOCKA (na prízemí - hneď pri ČSOB)
Pevná linka: 02 / 381 381 00

NAŠE RECENZIE: https://g.page/r/CfOCHUunngyYEAI/review

Vlastnosti

Status:
aktívne
Vlastníctvo:
osobné
Úžitková plocha:
200 m2
Zastavaná plocha:
220 m2
Podlahová plocha:
200 m2
Stav:
pôvodný stav
Počet izieb:
6
Typ budovy:
tehla
Typ výbavy:
kompletne vybavený
Verejné vonkajšie parkovanie:
áno
Sklad:
áno
Rok kolaudácie:
1999
Počet poschodí od prízemia vyššie:
1
Celková plocha:
273 m2
Orientácia:
severozápad
Inžinierske siete:
áno
Voda:
áno
Elektrika:
áno
Plyn:
áno
Kanalizácia:
áno
Vykurovanie - lokálne:
áno
Internet:
áno
Káblová TV:
áno
Status:
aktívne
Vlastníctvo:
osobné
Úžitková plocha:
200 m2
Zastavaná plocha:
220 m2
Podlahová plocha:
200 m2
Stav:
pôvodný stav
Počet izieb:
6
Typ budovy:
tehla
Typ výbavy:
kompletne vybavený
Verejné vonkajšie parkovanie:
áno
Sklad:
áno
Rok kolaudácie:
1999
Počet poschodí od prízemia vyššie:
1
Celková plocha:
273 m2
Orientácia:
severozápad
Inžinierske siete:
áno
Voda:
áno
Elektrika:
áno
Plyn:
áno
Kanalizácia:
áno
Vykurovanie - lokálne:
áno
Internet:
áno
Káblová TV:
áno

Informatívna úverová kalkulačka

Pozrieť na mape

Maklér

Ing. Jozef Kaša

Ing. Jozef Kaša

Riaditeľ RK Quality SC
Certifikovaný realitný poradca - senior
18 ročné skúsenosti v realitách

  • English
  • narks
  • lrm
  • rusr
  • sora

Pracujem v realitách pre Vás 18 rokov, lebo rád pomáham.

Ing. Jozef Kaša

RK Quality SC 

Radi Vám poradíme

Podobné nehnuteľnosti